

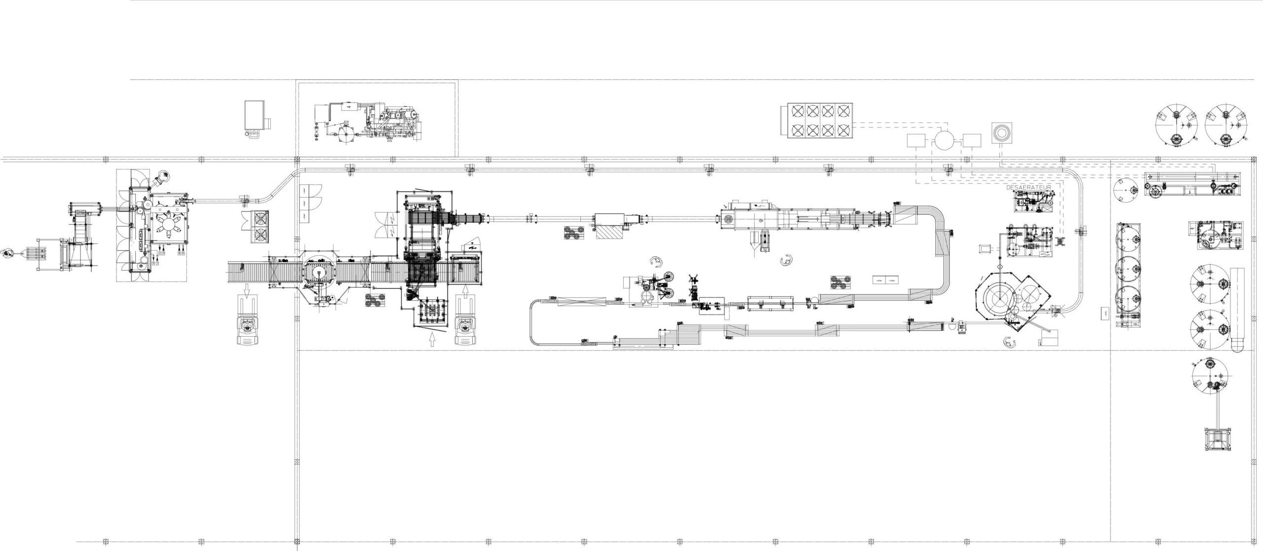
La funzione di questa macchina è di permettere una regolazione da pannello operatore dei tempi di trattamento utilizzando elettrovalvole su ogni ugello, comandate elettricamente, al fine di eliminare i limiti caratteristici delle normali sciacquatrici meccaniche.
Nelle sciacquatici tradizionali, infatti, le valvole sono azionate meccanicamente, tramite apposite camme soggette ad usura, ed è possibile variare il tempo di iniezione del fluido di risciacquo solamente variando manualmente la posizione di queste camme.
Le sciacquatici elettroniche possono essere a singolo, doppio o triplo trattamento; i tempi di trattamento sono stabiliti in base alle dimensioni dei contenitori, al prodotto sterilizzante utilizzato ed al grado di pulizia e/o decontaminazione che si desidera ottenere.
Il vantaggio di utilizzare un sistema ad azionamento elettrico, rispetto a quello meccanico, è di poter impostare un tempo di iniezione predefinito per ogni bottiglia e di mantenerlo costante al variare della produzione oraria, e quindi della velocità della macchina, con evidente risparmio nel consumo dei fluidi di lavaggio utilizzati, nonché di eliminare l’usura tipica degli azionamenti meccanici. Nel caso di macchine a semplice trattamento, occorre impostare il solo tempo di spruzzatura, essendo il rimanente tempo a disposizione dedicato allo sgocciolamento.
Nel caso del doppio trattamento, invece, occorre impostare i tempi dei due distinti trattamenti, a cui corrispondono due distinte elettrovalvole, ed anche il tempo di sgocciolamento intermedio, ossia quello che intercorre tra le fasi di iniezione dei due fluidi.
La durata dello sgocciolamento intermedio può rimanere costante oppure essere variabile in funzione del formato bottiglia o anche proporzionalmente alla velocità della macchina. La sequenza dei tempi di trattamento rimarrà, però, sempre la stessa, qualunque sia la velocità di rotazione della macchina.






Compila l’apposito form per ricevere tutti i dettagli di cui hai bisogno sui macchinari Promec
COMPILA IL FORM





